Оформление договора
Помощь в подборе цвета
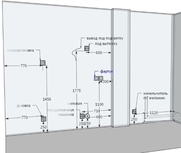
Спланируем розетки, коммуникации
Индивидуальный проект
Сделаем скос или радиус на столешнице

Монтаж керамогранита на фартук без стенного бардюра
Врежем варочные панели в один уровень со столешницей
Врежем мойки в один уровень со столешницей
Установим столешницу и фартук из HPL пластика без стенного бардюра

Установим мойку подстольного монтажа
Укажите ваши контактые данные и удобное время для звонка, мы перезвоним в указанное время
Если у вас возникли вопросы, задайте их нам и мы с радостью на них ответим.